作者:admin 发布时间:2017-12-27 13:50:34 浏览次数 :470

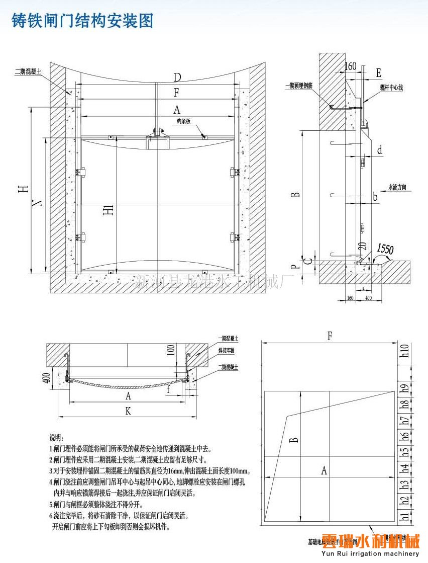
双向止水铸铁闸门结构组成
铸铁闸门主要由闸框、闸板、吊座及紧闭斜铁等零部件组成。为克服以往钢门易锈蚀的缺点,闸框、闸板全采用铸铁组成,其中闸框又由上横梁、下横梁、左直梁、右直梁组成。为了制造、运输、安装方便,闸板一般根据其大小或高度情况由上下几部分拼装组成。
闸门按闸板形状的不同,分为PZ平板和PGZ拱形两大类。具体选用可根据闸孔尺寸、承压水头、启闭型式、闸门自重等方面加以综合比较确定。
闸门按闸板结构的组合不同,分为整体式和组装式两大类。小规格的闸门一般制成整体式,但机械运输条件较差的施工安装点的闸门亦可制成组装式,以便于人工运输。中等规格以上的闸门一般均可制成组装式。
结构设计
主要由闸框和闸板两大部分组成。
闸框是闸板的支承构件,也是闸板的运行滑道,由地脚螺栓安装固定在水闸闸墩及闸底板的二期混凝土中,将闸板所承受的全部水压力安全传递到闸室中。为科学合理节约材料及减轻自重,其断面制成格构式,断面尺寸按所受荷载大小和闸板运行情况综合考虑。闸板是用来封闭和开启孔口的活动挡水构件, 板面四周设铸铁边框梁 , 为提高闸板的强度 , 板面制成拱形, 拱的圆心角按6 0度设计,以降低其所受的水压力。为便于制造、 运输和安装, 闸板可制成上下几部分 ,待到安装现场后再用螺栓连接组装成整体 ,连接处上下板设置法兰和筋板使其成为闸板的中间横梁,以提高闸板的纵向刚度 , 在宽度方向设置纵向筋板 ,以提高其横向刚度,同时起到纵梁的作用。
工作原理
闸板是直接承受水压力的挡水构件, 闸框是闸板四周的支承构件, 同时也是闸板上下运动的滑道,滑道以外部分镶嵌于闸墩及闸底的二期混凝土中, 将闸板所承受的水压力均匀地传递到闸墩及闸室底部。闸框迎水面四周与闸板框四周背水面接触处经机械精制、加工。
刨光后平直光滑、 贴合严密, 使结合面、 止水面与运动滑道合三为一。在启闭机作用下, 当闸门启闭运行时,紧闭斜铁和闸框滑道确保闸门的纵横运行轨迹, 在水压力和紧闭斜铁的双重作用下,确保闸板运行平稳 , 使闸板与闸框滑道紧密贴合, 从而达到有效止水的目的。 
